Emshield DSM System
Emshield® DSM System - The Emshield DSM System now has a long and well-proven track record of many years in sealing horizontal plane and below-grade joints. The Emseal DSM System is comprised of factory prepared and precompressed, silicone and impregnated foam hybrid profile that is installed into field-applied structural epoxy adhesive on the joint faces, with the silicone bellows locked to the joint faces with a silicone sealant band (see graphic).
The resulting product is suitable for a wide range of applications to seal horizontal joints in many different types of structure. The composition gives advantages for applications where traditional asphalt and wax-based products do not work well, such as under exposed conditions of thermal shock (leading to rapid opening and closing of joints during large temperature swings). These applications can include top decks as well as intermediate decks of buildings such as car parks and stadiums. The Emseal DSM System is ideal for both new construction and the refurbishment or retrofit of old or failed joint systems in concrete, or in between embedded metal angles where complete replacement and removal of the metal angles is not feasible or affordable.
Some of the major uses for the Emseal DSM system is for sealing expansion joints outside of major traffic areas where additional protection should obviously be provided – e.g. with the Emseal SJS-Cover-plate system for example. For movement joints located elsewhere, such as under or behind physical barriers, and particularly for perimeter expansion joints to isolate façade elements or other structural elements etc., including on externally exposed decks, on balconies and precast structures and elements like staircases and stairwells or culverts etc. In these locations the Emseal DSM System provides a very secure and reliable, cost effective solution for sealing wide and/or high movement expansion joints and in fact any other expansion, connection, isolation joints requiring durable watertight solutions.
Westside Development - External parking over Lower Storage Areas
Westside-Emseal DSM Joint Installed
Westside-Main Front Entrance
One recent example in the UK was at the Westside Office Development, North of the M25, close to Hemel Hempsted, where the DSM System was selected to retrofit and seal leaking expansion joints in decks and parking areas built over retail and commercial storage areas, where traditional compression seal systems had failed soon after construction. These now have a long term solution and you can see more information on the Westside Development and other Emseal Project Case Studies please see our Emseal Case Studies page here.
Product Data Sheet - View / Download
Emseal DSM System – Summary of Key Product Features
- Watertight
- No Invasive Anchoring
Continuity of Seal Fabricated transitions from deck to wall, at curbs, sidewalks, parapets, tees, and crosses are available.
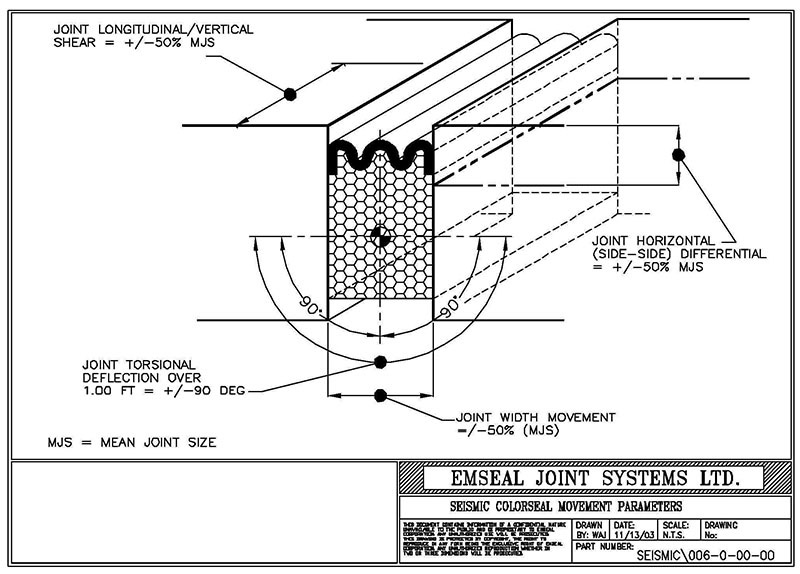
Movement Capability: 100% (+50%/-50%) of nominal width.
Aesthetics: Standard colour is grey (other colours available).
Fuel resistant: Suitable for variations in joint size
